

Монтаж, эксплуатация и ремонт технологического оборудования. Курсовое проектирование
Авторы: Юнусов Г. С., Михеев А. В., Ахмадеева М. М.
Издательство: ЛАНЬ
Издание: 2-е изд., перераб. и доп.
ISBN 978-5-8114-1216-7; 2022 г.
Кол-во страниц: 160
О книге:
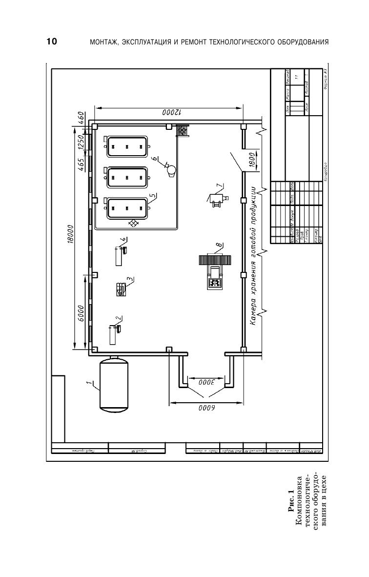
Приведена последовательность выполнения курсового проекта по дисциплине «Монтаж, эксплуатация и ремонт технологического оборудования», изложена технология монтажа, порядок выбора подъемных устройств при монтаже оборудования. Даны методика составления технологической карты на изготовление (восстановление) детали, рекомендации по составлению графика технического обслуживания технологического оборудования. Предложен справочный материал, необходимый для выполнения курсового проекта. Учебное пособие предназначено для студентов агроинженерных направлений подготовки и специальностей вузов и колледжей, а также может быть полезно специалистам перерабатывающих отраслей.