

Выполнение в Компас-3D конструкторской документации изделий с резьбовыми соединениями
Выполнение в Компас-3D конструкторской документации изделий с резьбовыми соединениями
Авторы: Большаков В.П., Чагина А.В.
Издательство: НИУ ИТМО (Санкт-Петербургский национальный исследовательский университет информационных технологий, механики и оптики)
2011 г.
Кол-во страниц: 166
О книге:
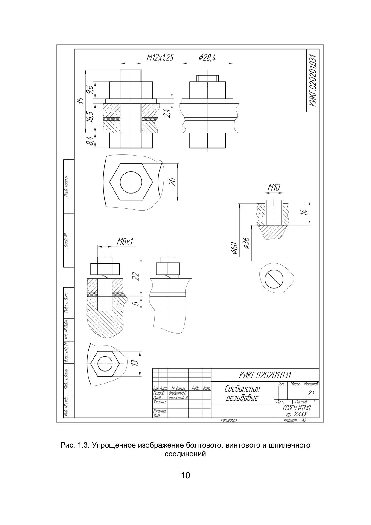
Рассмотрены примеры конструктивного и упрощенного изображения резьбовых соединений, выполнения сборочного чертежа и спецификации изделия со стандартными резьбовыми деталями. Приведены примеры деталирования на основе твердотельного моделирования сборочной единицы. Представлены примеры твердотельного моделирования и построения спецификаций сборок с резьбовыми стандартными изделиями. Приведены исходные данные для выполнения 28 вариантов учебных заданий.
Пособие рекомендуется студентам различных приборо- и машино- строительных специальностей.