

Пособие для изучения «Правил технической эксплуатации электрических станций и сетей» (электрическое оборудование)
Издательство: ЭНАС
ISBN 978-5-4248-0040-5; 2017 г.
Кол-во страниц: 352
О книге:
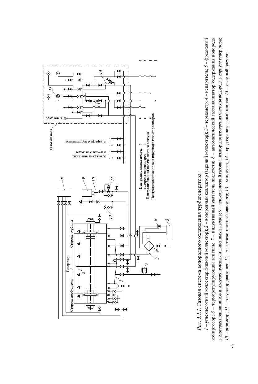
В пособии приведены пояснения к разделу 5 Правил технической эксплуатации электрических станций и сетей Российской Федерации, утвержденных приказом Минэнерго России от 19 июня 2003 г. № 229. Для персонала электростанций, электрических сетей и энерго систем. Пособие поможет специалистам в изучении Правил при приеме на работу и при подготовке к очередной проверке знаний.
Вверх