

Элементы систем жизнеобеспечения. Проектирование и монтаж: Учеб.пособие
Элементы систем жизнеобеспечения. Проектирование и монтаж: Учеб.пособие
Авторы: Пронин В.А., Глухих В.Н., Прилуцкий А.А.
Издательство: НИУ ИТМО (Санкт-Петербургский национальный исследовательский университет информационных технологий, механики и оптики)
2016 г.
Кол-во страниц: 104
О книге:
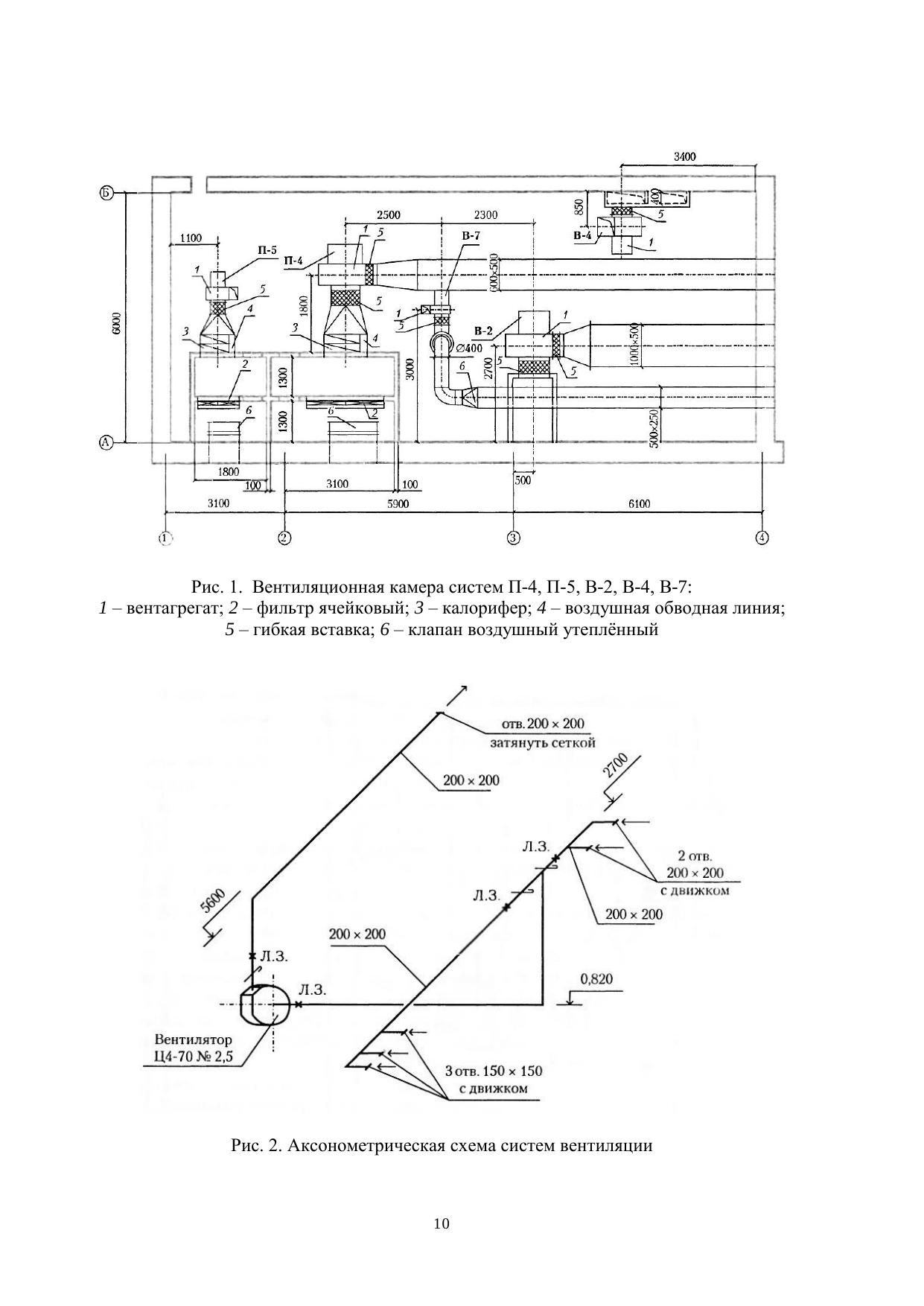
В учебном пособии изложены основные принципы организации, технологии и производственного процесса изготовления и монтажа основных систем жизнеобеспечения. Представлены этапы монтажных работ, указана необходимая техническая документация, даны рекомендации по проектированию и монтажу систем, а также рассмотрены прочностные расчёты элементов крепления различных элементов систем вентиляции и кондиционирования воздуха.
Пособие предназначено для студентов очной и заочной форм обучения по направлению 16.03.03 Холодильная, криогенная техника и системы жизнеобеспечения, выполняющих дипломное проектирование, а также для инженерно-технических работников, повышающих квалификацию на базе Университета ИТМО.