

Современное малоэтажное жилище в учебном проектировании
Авторы: Меренков А. В., Янковская Ю. С.
Издательство: ЛАНЬ
Издание: 2-е изд., стер.
ISBN 978-5-507-47215-4; 2023 г.
Кол-во страниц: 212
О книге:
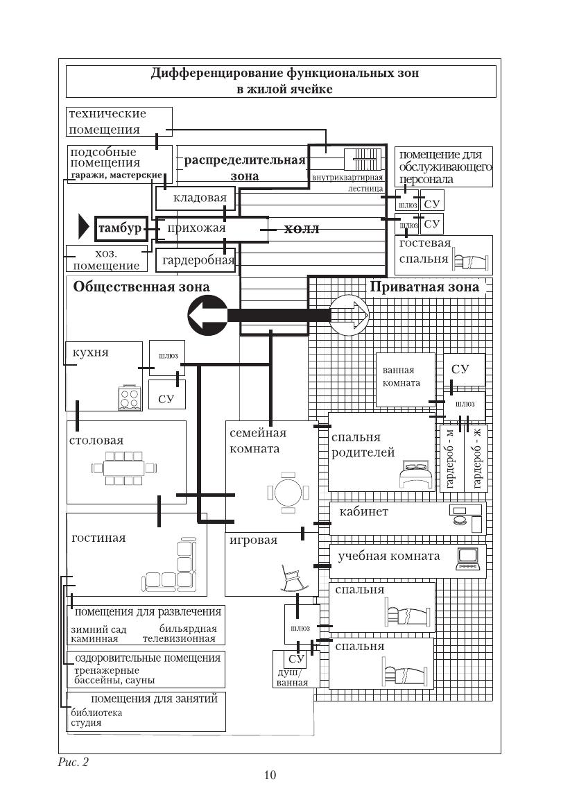
Пособие посвящено архитектурно-планировочному аспекту проектирования малоэтажного жилого дома. Освещает современные тенденции и их проявления в отечественной и зарубежной практике. Приведена методика учебного проектирования, являющаяся переходной от пропедевтического курса к типологическому. Учебное пособие предназначено для студентов, обучающихся по направлениям подготовки бакалавров «Архитектура», «Реконструкция и реставрация архитектурного наследия», «Дизайн архитектурной среды», «Градостроительство».