

Современное малоэтажное жилище в учебном проектировании
Авторы: Меренков А. В., Янковская Ю. С.
Издательство: ЛАНЬ
Издание: 2-е изд., стер.
ISBN 978-5-8114-8059-3; 2021 г.
Кол-во страниц: 212
О книге:
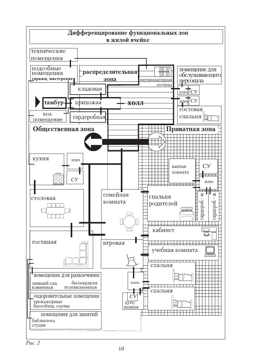
Пособие посвящено архитектурно-планировочному аспекту проектирования малоэтажного жилого дома. Освещает современные тенденции и их проявления в отечественной и зарубежной практике.
Учебное пособие предназначено для студентов средних профессиональных учебных заведений, обучающихся по специальности «Архитектура».
Вверх