

Волоконно-оптическая DWDM-система Siemens Surpass hiT 7540/7550
Издательство: ЛАНЬ
ISBN 978-5-507-45683-3; 2023 г.
Кол-во страниц: 116
О книге:
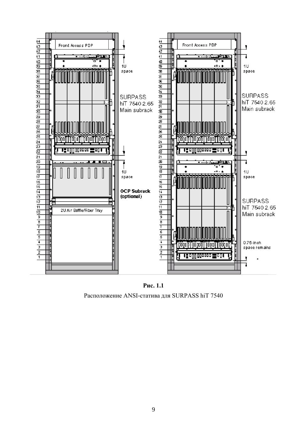
В учебном пособии излагаются принципы построения волоконно-оптической системы передачи данных фирмы Siemens Surpass hiT 7540 и 7550, основанной на технологии плотного спектрального мультиплексирования каналов DWDM. Наибольшее внимание уделено комплектации оборудования, структурным схемам транспортных терминалов, канальным мультиплексорам с функцией “add/drop”, системам коммутации каналов, а также функционированию сетевых элементов и используемых плат. Соответствует современным требованиям Федерального государственного образовательного стандарта среднего профессионального образования и профессиональным квалификационным требованиям. Учебное пособие предназначено для студентов ссузов, обучающихся по направлениям подготовки «Электроника, радиотехника и системы связи», «Информатика и вычислительная техника», «Фотоника, приборостроение, оптические и биотехнические системы и технологии» а также может быть полезно для технического персонала, занимающегося эксплуатацией, администрированием и обслуживанием современных DWDM-систем.